Добро пожаловать на http://vipplan.ru

Випплан Алексин - это тысячи проектов домов в нашем каталоге!

Вы всегда сможете найти для себя проект дома вашей мечты! Даже если этого не случилось, мы готовы в любую минуту предложить проект индивидуального дома.

Забыли пароль?
Вы еще не регистрировались?

Перейдите по ссылке ниже на страницу регистрации.

Регистрация...

Внимание!!!

В проектную документацию могут быть внесены изменения любой сложности, в соответствии в Вашими пожеланиями!

Полезные статьи

Сборные фундаменты

В наше время все большую популярность при строительстве дома приобретают сборные бетонные и железобетонные блоки. Их использование значительно сокращает время работ и снижает их трудоемкость....

Мероприятия по получению разрешения на строительство в Алексине

Хотите построить дом в Алексине? Не знаете с чего начать? Для начала, нужно заказать проект, а после получить разрешение на строительство. ...

Проекты домов и коттеджей > Каталог проектов домов > Проект двухэтажного дома с гаражом Vg1388

Проект двухэтажного дома с гаражом Vg1388

Проект двухэтажного дома с гаражом
Зарегистрируйтесь

Проект № Vg1388


Техническое описание
Общая площадь: 187.29 м2
Жилая площадь: 104.65 м2
Высота здания: 9.3 м
Размеры дома: 14.7м×14.4м
Кол-во комнат: 5
Цокольный этаж: нет
Гараж: нет
Мансарда: нет

Kонструкция
Фундамент: Монолитная плита
Перекрытия: Сборные ж/б плиты
Материал стен: Газобетон

Архитектурный раздел
Конструктивный раздел
АР+КР - 60 000 (Со скидкой 20%)
Проект индивидуального двухэтажного жилого дома с размерами здания 14,70 x 14,47 м. Наружная отделка здания – фасадной штукатуркой, клинкерной плиткой и деревянными панелями. Фундамент – монолитная плита ( под всей площадью дома). Наружные стены – газобетонные блоки. Внутренние стены - газобетонные блоки. Перегородки – газобетонные блоки. Пол первого этажа — пол по плите. Межэтажное перекрытие- сборные ж/б плиты. Крыша четырехскатная. Кровля – битумная черепица. Окна — металлопластиковые
Генплан застройки участка / Паспорт проекта 7000 руб / 10000 руб
Инженерный раздел (полный) 93500 руб
Смета на строительство 46750 руб
Теплотехнический расчет материалов стен Бесплатно
Стоимость проекта со незначительнми изменениями 70300 руб
Стоимость проекта со средними изменениями* 84400 руб
Стоимость проекта со значительными изменениями** 88100 руб

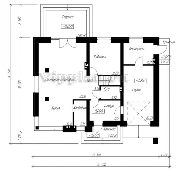
План первого этажа


Тамбур — 7,19 м2
Холл — 3,44 м2
Гостина-столовая — 29,18 м2
Кухня — 10,13 м2
Кладовая — 3,76 м2
Кабинет — 11,29 м2
С/у — 2,92 м2
Бойлерная — 7,31 м2
Гараж — 20,73 м2

Проект двухэтажного дома с гаражом

Проект двухэтажного дома с гаражом

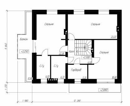
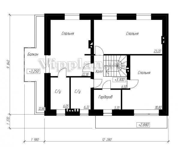
План второго этажа


Холл — 6,50 м2
Спальня — 23,20 м2
Спальня — 18,80 м2
Гардероб — 5,35 м2
Спальня — 22,18 м2
С/у — 6,05 м2
С/у — 6,33 м2
Проект двухэтажного дома с гаражом Проект двухэтажного дома с гаражом Проект двухэтажного дома с гаражом Проект двухэтажного дома с гаражом

Модификации проектов

Внесение изменений и привязка к участку строительства

В любой из проектов от компании VIPplan - Алексин по вашему желанию могут быть внесены изменения в материалы стен, материалы наружной отделки дома, а также будет произведена адаптация проекта под конкретный регион строительства (с учетом грунтов региона, геологических особенностей вашего участка и местных климатических условий) - БЕСПЛАТНО !!! (кроме проектов со скидкой и проектов наших партнеров).

Любой из проектов, размещенных на сайте aleksin.vipplan.ru мы можем выполнить из требуемых вам строительных материалов: ячеистый бетон (газобетон, пеноблок), керамоблок, кирпич, шлакоблок, бетонный блок, дерево (брус, клееный брус), каркасная технология (деревянный каркас, металлокаркас (ЛСТК)).

Фасад дома и его наружную отделку так же возможно выполнить с применением различных облицовочных материалов: структурной штукатурки, (с утеплителем и без), сайдингом (пластиковый или металлосайдинг), фиброплитами, кирпича.

 
6 Избранные
проекты

Доставка проектов по России: Москва (Московская область), Санкт-Петербург (Ленинградская область), Краснодар, Ростов-на-Дону, Ставрополь, Сочи, Волгоград, Новосибирск, Белгород, Брянск, Воронеж, Саратов, Хабаровск, Астрахань, Нальчик, Владикавказ, Екатеринбург, Тюмень, Самара, Нижний Новгород, Казань, Пермь, Уфа, Челябинск, Красноярск, Ханты-Мансийск, Иркутск, Курган, Оренбург, Омск, Томск, Барнаул, Новокузнецк, Кемерово, Абакан, Чита, Якутск, Южно-Сахалинск, Петропавловск-Камчатский и страны ближнего зарубежья: Белоруссия, Украина, Казахстан