Добро пожаловать на http://vipplan.ru

Випплан Алексин - это тысячи проектов домов в нашем каталоге!

Вы всегда сможете найти для себя проект дома вашей мечты! Даже если этого не случилось, мы готовы в любую минуту предложить проект индивидуального дома.

Забыли пароль?
Вы еще не регистрировались?

Перейдите по ссылке ниже на страницу регистрации.

Регистрация...

Внимание!!!

В проектную документацию могут быть внесены изменения любой сложности, в соответствии в Вашими пожеланиями!

Полезные статьи

Технология строительства быстровозводимых домов

Погода бывает разной и показывает свой характер и он не редко оказывается малоприятным. Прекрасная солнечная погода сменяется то жарой, то резким похолоданием, то проливными дождями. Когда наступает зима, вопрос утепления деревянного дома становится все актуальнее и актуальнее. Если вы планируете построить дом в конце осени, то вам нужно знать,что микроклимат который будет создаваться внутри, повлияет на сопротивляемость организма, к простуде и прочим вирусным заболеваниям. Да и в теплом уютном доме приятно проводить время, когда за окном вьюга и стужа....

Свайно-ростверковый, буронабивной фундамент

Для объединения свай в общий фундамент устанавливают бетонные ростверки (железобетонные плиты). Устройство ростверка зависит от расположения, вида свай и конструкции здания. Ростверки могут быть монолитными, сборными или сборно-монолитными, также возможны безростверковые решения. ...

Проекты домов и коттеджей > Каталог проектов домов > Проект двухэтажного коттеджа Vg1192

Проект двухэтажного коттеджа Vg1192

Проект двухэтажного коттеджа
Зарегистрируйтесь

Проект № Vg1192


Техническое описание
Общая площадь: 313.77 м2
Жилая площадь: 156.8 м2
Высота здания: 9.79 м
Размеры дома: 22.32м×18.95м
Кол-во комнат: 7
Цокольный этаж: нет
Гараж: нет
Мансарда: есть

Kонструкция
Фундамент: Монолитная ж/б плита
Перекрытия: Сборные ж/б плиты
Материал стен: Газобетон

Архитектурный раздел
Конструктивный раздел
АР+КР - 84 000 (Со скидкой 20%)
Индивидуальный проект двухэтажного жилого дома с размерами здания 22,32 x 18,95м. Наружная отделка здания - облицовочный кирпич. Отделка вентканалов и дымоходов - клинкерная плитка (в цвет кирпича). Цоколь - отделка камнем. Фундамент - монолитная ж/б плита (под всей площадью дома). Наружные стены: газобетонные блоки, утеплитель -экструдированный пенополистирол, вент.зазор, облицовочный кирпич. Внутренние стены - газобетонные блоки. Перегородки: кирпич забутовочный. Перемычки монолитные и сварные из профиля проката. Пол первого этажа - пол по плите. Межэтажное перекрытие - сборные ж/б плиты перекрытия. Чердачное перекрытие - по деревянным балкам с использованием теплоизоляционных материалов типа "URSA" в межбалочном пространстве. Крыша многоскатная. Покрытие - гибкая черепица. Лестница металлическая, выполняется по индивидуальному заказу. Окна - металлопластиковые, выполненные по индивидуальному заказу.
Генплан застройки участка / Паспорт проекта 7000 руб / 10000 руб
Инженерный раздел (полный) 157000 руб
Смета на строительство 78500 руб
Теплотехнический расчет материалов стен Бесплатно
Стоимость проекта со незначительнми изменениями 97150 руб
Стоимость проекта со средними изменениями* 120700 руб
Стоимость проекта со значительными изменениями** 127000 руб

План первого этажа


Тамбур — 6,08 м2
Гардероб — 5,22 м2
С/у — 1,67 м2
Бойлерная — 6,12 м2
Холл — 17,82 м2
Гостиная — 34,42 м2
Кухня — 21,13 м2
Кладовая — 6,93 м2
Кабинет — 11,38 м2
Коридор — 5,05 м2
Предбанник — 5,15 м2
Парилка — 5,76 м2
Комната — 44,62 м2
Душевая — 3,28 м2
Гараж — 36,01 м2

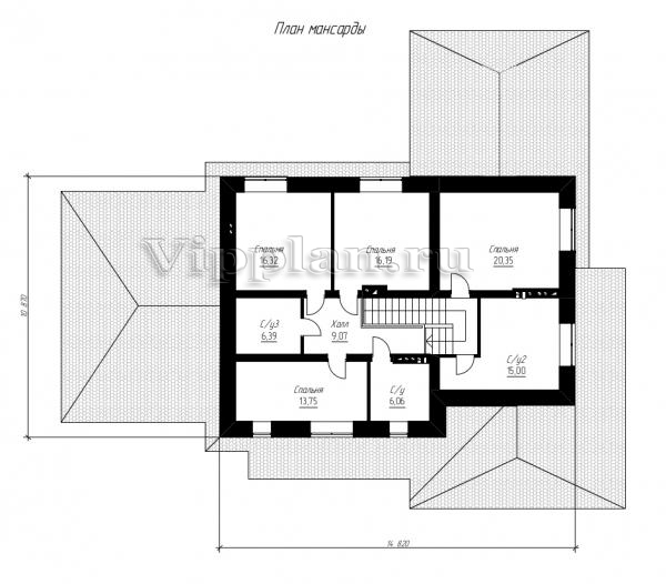
План мансардного этажа


Холл — 9,07 м2
Спальня — 16,32 м2
Спальня — 16,19 м2
Спальня — 20,35 м2
С/у — 15,00 м2
С/у — 6,06 м2
Спальня — 13,75 м2
С/у — 6,39 м2
Проект двухэтажного коттеджа Проект двухэтажного коттеджа Проект двухэтажного коттеджа Проект двухэтажного коттеджа

Модификации проектов

Внесение изменений и привязка к участку строительства

В любой из проектов от компании VIPplan - Алексин по вашему желанию могут быть внесены изменения в материалы стен, материалы наружной отделки дома, а также будет произведена адаптация проекта под конкретный регион строительства (с учетом грунтов региона, геологических особенностей вашего участка и местных климатических условий) - БЕСПЛАТНО !!! (кроме проектов со скидкой и проектов наших партнеров).

Любой из проектов, размещенных на сайте aleksin.vipplan.ru мы можем выполнить из требуемых вам строительных материалов: ячеистый бетон (газобетон, пеноблок), керамоблок, кирпич, шлакоблок, бетонный блок, дерево (брус, клееный брус), каркасная технология (деревянный каркас, металлокаркас (ЛСТК)).

Фасад дома и его наружную отделку так же возможно выполнить с применением различных облицовочных материалов: структурной штукатурки, (с утеплителем и без), сайдингом (пластиковый или металлосайдинг), фиброплитами, кирпича.

 
6 Избранные
проекты

Доставка проектов по России: Москва (Московская область), Санкт-Петербург (Ленинградская область), Краснодар, Ростов-на-Дону, Ставрополь, Сочи, Волгоград, Новосибирск, Белгород, Брянск, Воронеж, Саратов, Хабаровск, Астрахань, Нальчик, Владикавказ, Екатеринбург, Тюмень, Самара, Нижний Новгород, Казань, Пермь, Уфа, Челябинск, Красноярск, Ханты-Мансийск, Иркутск, Курган, Оренбург, Омск, Томск, Барнаул, Новокузнецк, Кемерово, Абакан, Чита, Якутск, Южно-Сахалинск, Петропавловск-Камчатский и страны ближнего зарубежья: Белоруссия, Украина, Казахстан